Highlights
This stunning 5-bedroom chalet with 4.5 bathrooms, sauna & outdoor table tennis sleeps up to 12 people across three stories. Although the chalet is 2km by road from the ski-lift and village amenities, there is a footpath that leads to the village in less than 350m.
Bedrooms and bathrooms
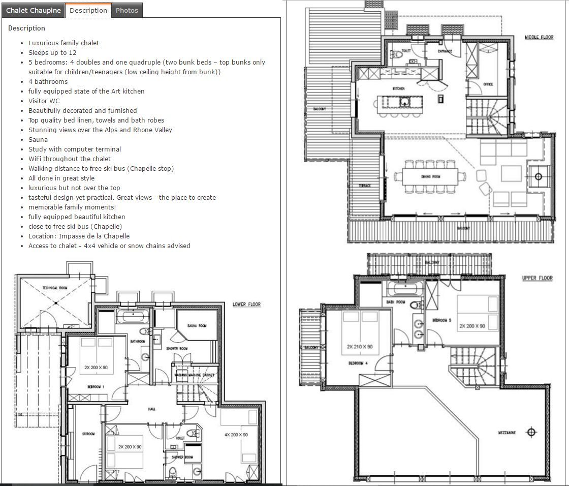
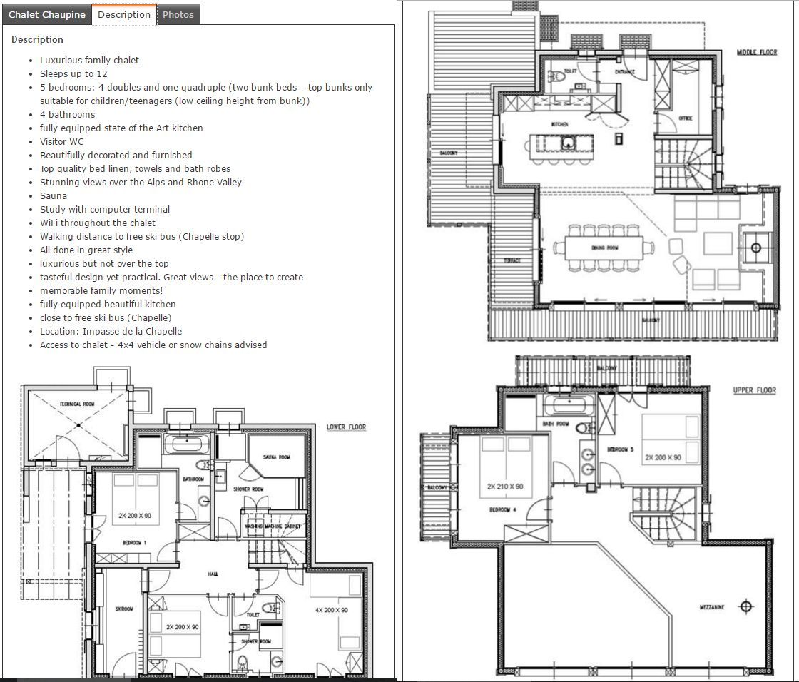
In total, there are five bedrooms, four bathrooms, two guest WCs.
The lower floor sleeps 8 people in three bedrooms, with three bathrooms:
- Bedroom with two separate twin beds, ensuite bathroom with bath, spacious shower, WC, sink. Double doors open onto the sunny terrace.
- Bedroom with double bed (two mattresses that cannot be separated), ensuite bathroom with shower, WC, sink. Double doors open onto the sunny terrace.
- Children's bedroom with full-size single bunk beds for 4 people, large flatscreen TV and DVD-player.
- Sauna bathroom (with sauna, shower and sink), and guest WC.
The main living floor has a guest WC.
The upper floor sleeps 4 people in two bedrooms with one bathroom:
- Twin bedroom with two extra-long (210 cm) beds and doors to balcony, flatscreen TV.
- Twin bedroom with two separate beds and doors to balcony
- Large, shared bathroom with double sink, bath, spacious shower and WC
La Tzoumaz Chalet Chaupine is equipped with a high chair and a folding travel cot (bedding not provided) suitable for children under 2 years old, and a second is available on demand on arrival. Please note that in accordance with the manufacturer's safety instructions, additional mattresses are not provided with the cots.
Equipment
The main double-height living area is the central masterpiece, with superb views over the Rhone valley and the surrounding mountains. Here, the chalet structural design emphasises feelings of openness and space, with plenty of light streaming in from the large glass doors and windows that expose the stunning scenery all around. The carefully selected furnishings and fittings separate this huge space into a cosy lounge area focused around the open fireplace, a modern kitchen with cooking island and bar to seat five people, and a dining area that comfortably seats 12 around the large table. The fully-fitted kitchen has everything you might need for your hioliday cooking, including oven, 4-ring hob, separate freezer, microwave, kettle, toaster, electric filter coffee-machine, Nespresso coffee-machine plus 2 fondue sets and 2 raclette sets.
Patio doors on this level lead to the balcony, terrace and upper garden. The outside garden has two levels, great for summer barbecues, dinners on the large outside table, a game of table tennis or lounging on the deck chairs. The entrance is on the lower floor through the ski-room, which has enough space for ski gear for 12 people and a separate heater to ensure gloves and ski boots are comfortable and dry again the next day.
There is a washing machine, dryer, iron and ironing board for you to use.
Relaxing
There are so many options in this relaxing chalet if you can distance yourself from checking your emails at the separate office space with internet-ready computer. The sauna is a delight at the end of a long day, and it's impossible not to relax when you step into the incredible living/dining area. The open fireplace has a full glass shield so it can be used to provide background atmosphere. The mezzanine area overlooks the living room, offering a separate place to read or play games, or for the children to hook up their computer games to the large flatscreen TV, or watch movies on the DVD player. There is outdoor table tennis, and the downstairs children's room transforms into a separate playroom with TV if you need some peace and quiet.
Internet
Chalet Chaupine is equipped with free, high-speed WIFI for your own private use.
Pets
We’re sorry but Chalet Chaupine is a pet-free property. Please browse our selection of pet-friendly chalets if you would like to travel with your pet.
Access and parking
There is a steep uphill footpath that climbs up through the countryside and takes you to the village centre, then to the telecabin. This mountain footpath is not suitable for everyone, especially in snowy or rainy conditions. It is possible for good skiers to follow this route home in good snow conditions and reach the chalet on skis.
At least one car is advisable in both summer and winter. There is ample parking for 2 or 3 cars outside the chalet. Winter tyres and/or snow chains are necessary in winter due to frequent snowfalls and the final 150m of steep access road. An alternative parking bay is available 150m from the chalet at the base of the steep access road. Contact us for airport or railway transfers.
Winter
There is a free ski-bus stop just a 200m downhill walk down the road from the chalet. Alternatively, the chalet is located only 350m below the lift and the village. It's a challenging walk uphill with skis, so is not suitable for erveryone. In good conditions, good skiers can then ski back through the gardens to the front door. Otherwise it is only a 2km drive to the large free ski-in and ski-out parking area above the village, from where you can ski down to the telecabin. The modern high-speed telecabin carries you from La Tzoumaz up to the top of the Savoleyres in less than 8 minutes, from where you can decide to ski back on the quiet La Tzoumaz slopes or ski down to Verbier’s legendary slopes and world-class off-piste opportunities in the vast 4-Valleys ski area.
Summer
In the peak summer season (from early July to late August), we provide you with free VIP pedestrian lift-passes, half-price mountain-bike daypasses and a range of other discounts. The telecabin link to Verbier operates daily at this time of year from 08:45 to 12:30 and from 13:30 to 16:45, meaning that you can easily access the famous resort as a pedestrian, or accompanied by your bicycle or e-bike. For a small supplement you can even use a variety of mountain lifts to make your way up to Mont Fort at 3300m for the highest fondue in Europe and incredible mountain panoramas that include Mont Blanc and the Matterhorn.
In summer, the area turns into a hiking and mountain biking paradise, with hundreds of kilometres of marked trails criss-crossing the mountains, awash with alpine flowers and a range of wildlife to spot. Visit the Maison de la Foret with its wildlife exhibitions and its Five Senses Nature Trail, and the starting point of many beautiful hikes. The Bisses are relatively flat footpaths that follow the water as it trickles around the mountainsides, where for centuries farmers and villagers channelled the streams for their own uses. They have been preserved and can now be an incredible way to spend a day or more on easy hikes with stunning views across the Rhone Valley or over to the Massif des Combins. We will provide you with plenty of tourist information including our favourite suggestions for day trips that are easily reachable from La Tzoumaz, from spectacular gorge walks, cheese factories and roman festivals to rainy-day ideas such as underground lake tours. The road that winds up the mountain-top to the panoramic Croix-de-Coeur Cafe-Restaurant opens as soon as the snow melts and from here you can continue the drive (or cycle) all the way down into Verbier. Try not to miss the Swiss National Celebrations in La Tzoumaz on August 1st, or the famous festival of live music performances, the Verbier Festival, which runs from mid-July to the beginning of August.
For families
The centre of La Tzoumaz benefits from an outdoor ice-skating rink in winter, and a children's playground area in summer, with a rope-based agility park alongside more traditional equipment such as slides. A fun channel system with running water is built into the hillside to provide plenty of entertainment for older children too.
At the exit of the village the Domus playground is a fabulous spot, often bathed in late afternoon sunshine, with swings, a zipline, see-saw, climbing frames and even old tractors to clamber on. It is overlooked by an outdoor cafe (check opening hours) providing drinks, snacks and ice-creams. There are rabbits, donkeys, goats, and there is also rock-climbing on the local crag in the background (contact us for equipment and instructors).
The Maison de la Foret has a cafe area for drinks and snacks (check opening hours), wildlife exhibitions and its Five Senses Nature Trail with hands-on activities to borrow such as bird-whistling and learning to draw. The Nature Trail has disabled parking and is accessible to wheelchairs and children's buggies.
Right at the top of the village is the "Defis de la Riviere", which is equipped as an outdoor physical challenge area for older kids on the river. There are sensory walking areas for younger children and a basket swing, and also a picnic spot nearby.
A short drive down the valley takes you to the large lake at the Parc des Iles, with its playgrounds, high-ropes park, minigolf, restaurant, miniature train and more.
Booking details
The total price is composed of a one-off non-variable cost (per booking) to cover final cleaning, bed-linen and towels, and other one-off fees, plus a nightly rental rate (per night) and nightly tourist taxes (per adult/child and per night), plus website fees (site-specific).
This total price includes the following:
- our warm welcome and support during your stay
- WIFI
- beds made up for your arrival with our bedsheets and towels
- an eco-friendly welcome pack (new for Winter 2023/4)
- full use of private sauna
- firewood (fair use)
- credit card charges
- electricity & heating
- final cleaning
- tourist taxes for the number of adults/children stated at time of enquiry/booking. Please note that due to the inclusion of tourist taxes in the calculation, the price varies according to the number of people who will stay. Adults are classed as over 16 years, and children from 6 to 15 years. At the time of booking there is no need to declare (or pay for) children under 6 years old on the date of travel, however please mention them in the "Special Requests" box so that we can include them in our arrival preparations.
- free summer lift passes for the number of adults/children stated at time of booking (early July to late August)
- the opportunity to buy 15% discounted ski lessons and rental (conditions apply) after booking a winter holiday with us (December to April).
Not included in the price:
- On arrival we will ask for a credit card pre-authorisation for use in case of breakage unpaid at departure (up to 1000 CHF). The deposit will be cancelled when no unpaid damage is found after your departure.
- Dogs not allowed
- Only the exit cleaning is included in the base price so if you wish to have extra cleaning during your stay then this can be arranged on request.
- Bedding and towels are provided for your arrival. If you require an extra set of bedding and towels during your stay then this can be arranged for 22CHF per person.
- Standard arrival is from 16h00, and departure is by 10h00. Early Arrival from 14h00 can be purchased up to one week in advance of Saturday arrivals in winter and peak summertime.
We operate a strictly "first-paid = first-reserved" basis for bookings which means we cannot guarantee availability beyond what you see on this online booking portal and so we recommend you confirm within 48h in order to secure the reservation. You can book and pay by credit card right now through the secure online booking portal using the link on this page. 50% of the total amount is due upon reservation and the remainder is payable 2 months before arrival.
Cancellation policy
Free cancellation* for any reason within 7 days of booking.
– More than 90 days before arrival – 95% refund
– From 30 to 90 days before arrival – 70% refund**
– Less than 30 days before arrival – 10% refund**
*Please note that our refund policies do not cover the fees paid to any booking website, as these fees are beyond our control so we can only refund based on 100% of the price you paid if you book directly with 4vallees4saisons, and otherwise the refund of booking site fees must be requested separately from the booking site.
**If we are able to resell the holiday to another client, we can increase your refund to a maximum of 85%, depending on the resale amount achieved.
La Tzoumaz Chalet Chaupine
Brought to you by 4vallees4saisons
Large and classic holiday house in La Tzoumaz, 4 Vallees, Switzerland for 12 persons. The house is situated in a mountainous area.
The house has 5 bedrooms, 4 bathrooms and 1 guest toilet, spread over 3 levels. The accommodation offers a lawned garden and wonderful views of the valley and the mountains. The vicinity of sports activities and places to go out makes this a fine holiday house to spend your holidays in Switzerland with family or friends.
Interior of this holiday home
- 3 level holiday house
- open mezzanine with television and DVD player
- living/dining room
- fireplace in living room (wood)
- balcony
- 5 bedrooms, 4 bathrooms and 1 guest toilet
- cable television
- utility room with washing machine and tumble dryer
Kitchen
- open kitchen with induction cooker, electric oven, microwave, dishwasher, refrigerator, freezer, icemaker, coffee machine, electric kettle, mixer and toaster
Bedrooms and bathrooms
- bedroom with king size bed (measuring 190 by 180cm) and bathroom en-suite
- bedroom with 4 bunk beds (measuring 190 by 90cm), television and DVD player
- bedroom with 2 single beds (measuring 190 by 90cm) and television
- bedroom with 2 single beds (measuring 190 by 90cm)
- bedroom with 2 single beds (measuring 190 by 90cm) and bathroom en-suite
- en-suite bathroom with single washbasin, bath, shower, toilet and hairdryer
- bathroom with double washbasin, bath, shower, toilet and hairdryer
- en-suite bathroom with single washbasin, shower, toilet and hairdryer
- bathroom with sauna, single washbasin, shower, toilet and hairdryer
Exterior of this holiday home
- lawned garden
- terrace
- barbecue
- outside sitting area and outside dining area
- 3 private parking spaces
More information
- skislope and skilift within 2 kilometers of the house
- nearest town: La Tzoumaz (within 2 kilometers of the house)
- nearest riverbank or shore: Lac & Parc des Iles (within 25 kilometers of the house)
- nearest park: Defis de la Riviere (within 4 kilometers of the house)
- nearest airport: GVA ( > 100 kilometers of the house)
- second nearest airport: ZRH ( > 100 kilometers of the house)
- public transport: bus within 1000 meters and train within 25 kilometers of the house
- smoking not allowed
- pets are not allowed
- The accommodation is very suitable for families with children, photo sessions and yoga sessions
Facilities and services included in the rental price of this holiday home
- computer and internet (WiFi)
- vacuum cleaner and iron and ironing board
- bed linen and towels
- table tennis
- floor heating
- sauna
- children beds/cots (on demand)
Entertainment and leisure activities for your holidays in La Tzoumaz, 4 Vallees
- bar (within 5 kilometers from the house)
- water park (Les Bains de Saillon) (within 25 kilometers from the house)
Sights and culture in La Tzoumaz, 4 Vallees
- church (Chapelle de l'Ascension) (within 5 kilometers from the accommodation)
- monument (La Vidondee) and architectural building (Iserables Raccards) (within 25 kilometers from the accommodation)
Sports
- hiking, mountainbiking and cycling (within 1000 meters of the house)
- tennis, skiing and climbing (within 5 kilometers of the house)
- fishing (within 10 kilometers of the house)
- surfing (within 25 kilometers of the house)
Please note that for this accommodation a security deposit of € 1.085,39 is required. For more information, please see our Rental Conditions.
Official accommodation identification number: 1190700
IMPORTANT TO KNOW: The amenities and pictograms below are only a guideline. Our holiday homes are mostly privately owned and may be subject to changes of which we are not aware at the time of publication. We of course do our utmost to have all information up to date.